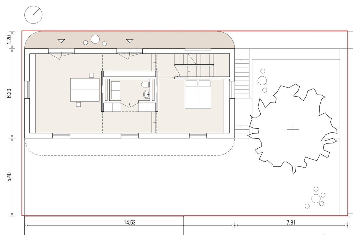
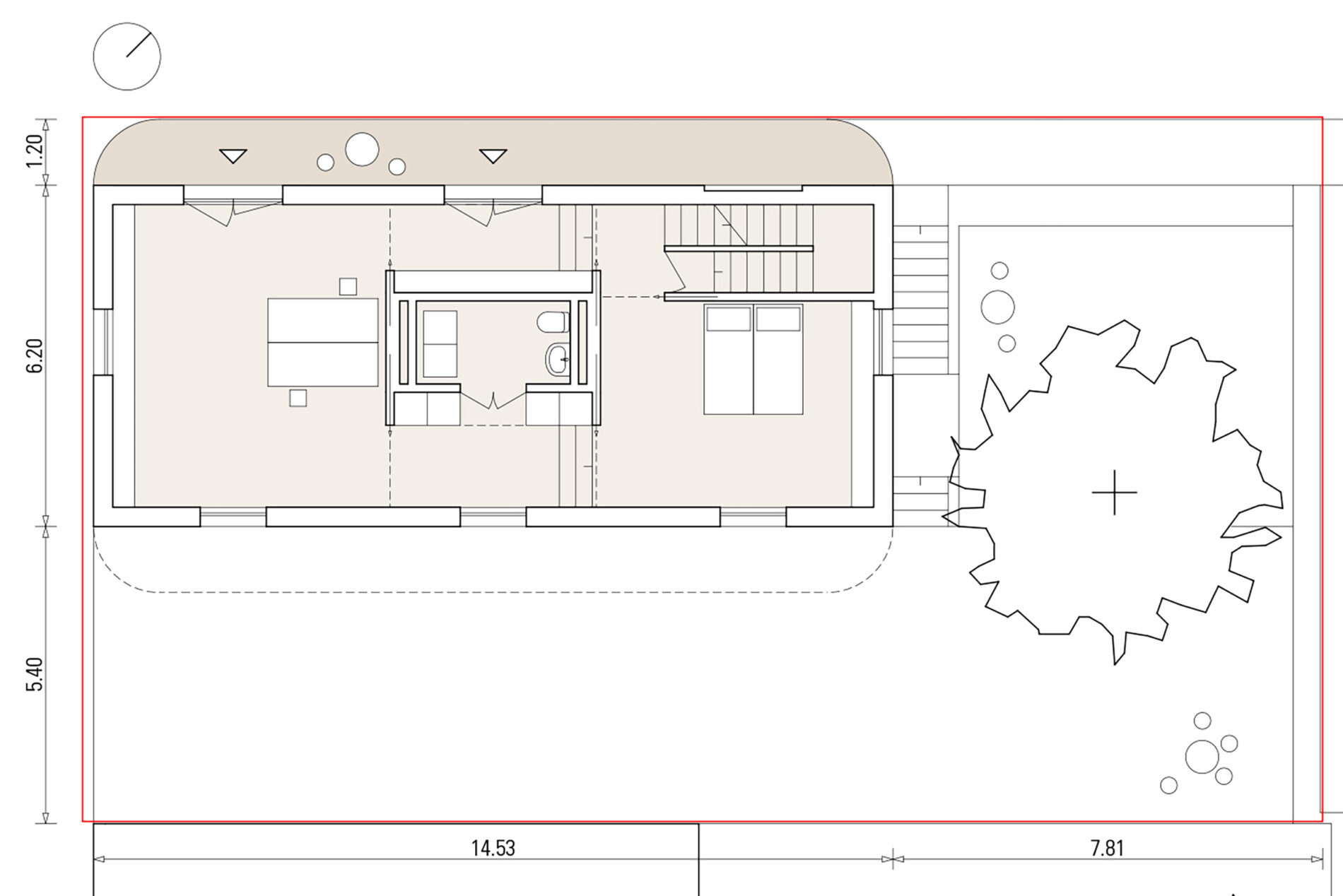
neubau
wohnhausauftrag
projektentwicklung für ein (zweit)wohnhaus im dorfkern, mass- und qualitätsvoller ersatzneubau.
die robuste strukturierung der geschosse erlaubt grossen spielraum in der bewohn- und benützbarkeit des hauses,
struktur und ausbau können noch an die künftige nutzung angepasst werden.
bauherrschaft
privat
ort
7212 seewis dorf
leistungen
recherchen, vorabklärungen, vorprojekt und projekt in zusammenarbeit mit
auftraggebern, behörden, partnern, spezialisten und unternehmern.
daten
vorabklärungen herbst 2012
vorprojekt frühjahr 2013
projekt herbst 2014




